Wohnimmobilie > Etagenwohnung		
		
								Zu Verkaufen
							
					Modernes Wohnen mit Balkon und Tiefgarage in der Altstadt
93047 Regensburg
					
				349.000 €							
		134975079#PSAcTk
					2002
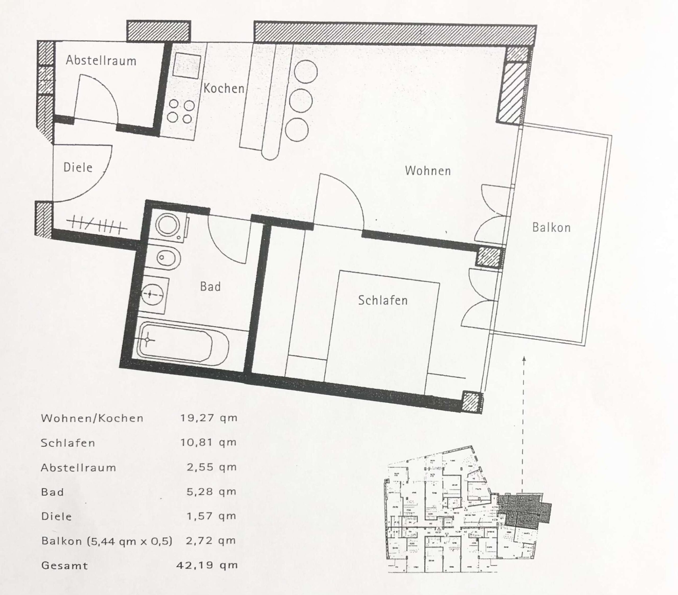
					42 m²
					2
					- 
			Zwischen zwei Fußgängerzonen gelegen, erfüllt diese Adresse alle Ansprüche, die Sie an ein Domizil in der besten Lage einer Stadt erstellen können. In unmittelbarer Nähe finden Sie neben exclusiven Boutiquen, Cafes und Restaurants all das, was Sie zum täglichen Leben brauchen. Banken, Ärzte, Kindergärten, Schulen, Stadtbusse, die Bahn und vieles mehr.
- 
			Flächen- Wohnfläche: 41,58 m²
- Zimmer insgesamt: 2
- Schlafzimmer: 1
- Badezimmer: 1
- Etagen: 4
- Etage: 2
- Stellplätze: 1
- Stellplatzart: Tiefgarage
- Außenstellplätze: 1
- Terrassen: 1
 Zustand & Erschließung- Baujahr: 2002
- Zustand: gepflegt
- Keller: voll unterkellert
 SonstigesKaufpreis:
 Wohnung: 319.000€ Stellplatz : 30.000€ —————————— Gesamt: 349.000€
 Nettomiete Wohnung: 500€ Nettomiete Tiefgarage: 95€
 3,57% Käuferprovision inkl. MwSt. verdient und fällig mit Beurkundung des notariellen Kaufvertrages. Der Immobilienmakler hat einen provisionspflichtigen Maklervertrag mit dem Verkäufer in gleicher Höhe abgeschlossen.
 
 Die Angaben zu der Wohnung beruhen auf Informationen der Verkäufer.
 Eine Haftung für deren Richtigkeit und Vollständigkeit übernimmt Immobilien Peter Dippold nicht.- zurzeit vermietet: ja
 
- 
			Die sehr helle Wohnung ist wie folgt aufgeteilt und ausgestattet: 
 Großer Wohnraum mit Kochecke incl. Einbauküche mit Insel, Schlafzimmer, exclusives Bad, Abstellraum, Balkon, elektr. Außenrollos (Alu), Echtholzparkettboden, Tiefgarage- Heizungsart: Zentralheizung
- Befeuerung: Gas
- Küche: Einbauküche
 - 
			barrierefrei
- 
			Personenaufzug
 
- 
			- Warmwasser im Energieverbrauch enthalten: ja
- Primärenergieträger: Gas
- Baujahr (Energieausweis): 2002
- Energieausweis-Jahrgang: nicht erforderlich
- Energieausweis-Gebäudeart: Wohngebäude
 
- 
			In der Altstadt von Regensburg 
- 
			- Kaufpreis: 349.000 €
- Hausgeld: 264 €
- Käuferprovision: Käuferprovision: 3,57% vom Kaufpreis das entspricht 12.459,30 Euro inkl. 19% Mwst.
- Mieteinnahmen/Jahr: 6.000 €
- Stellplatzkaufpreis (Garage): 30.000 €
 









