Wohnimmobilie > Mehrfamilienhaus
Zu Verkaufen
Mehrfamilienhaus mit Potential zu verkaufen
93059 Regensburg
800.000 €
150790907#PSAcTk
1951
245 m²
679 m²
12
-
Zum Verkauf steht ein schönes Mehrfamilienhaus mit 3 Wohneinheiten. Das MFH befindet sich auf einen 679qm großem Grundstück im Norden von Regensburg. Die historische Regensburger Altstadt ist in wenigen Fahrminuten erreichbar. Einkaufmöglichenkeiten für den täglichen Bedarf wie das „Alex-Center“ ist in wenigen Geminuten zu erreichen. Ein Stück weiter befindet sich das Donau-Einkaufszentrum, es ist das größte Einkaufszentrum Ostbayerns.
Die aktuelle Mieteinnahmen verteilen sich wie folgt:
EG: Wfl.ca.85qm, Kaltmiete:379 EUR, zzgl. 50 EUR für beide Garagen,
vermietet seit ca.1980
1.OG: Wfl.ca.90qm, Kaltmiete:759 EUR, vermietet seit 2016
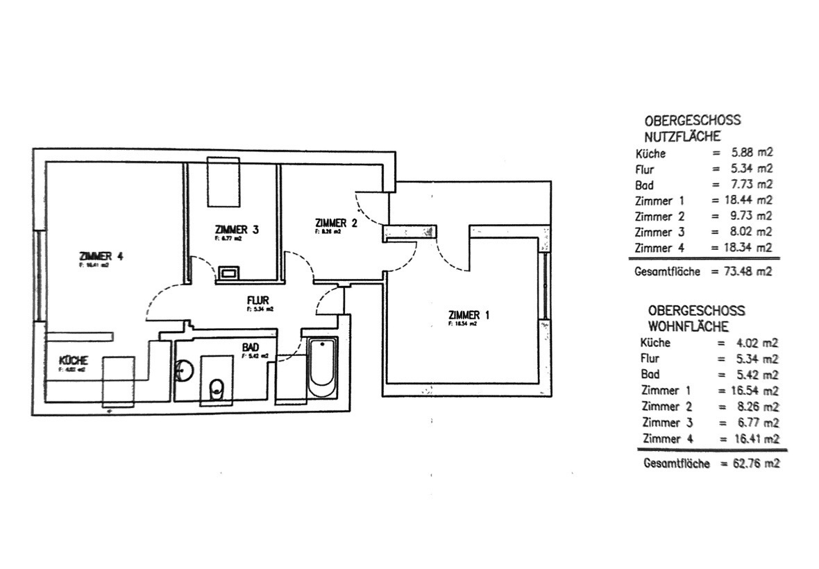
DG: Nfl.ca.70qm, Kaltmiete:580 EUR, vermietet seit 2015 -
Flächen
- Wohnfläche: 245 m²
- Grundstücksfläche: 679 m²
- Zimmer insgesamt: 12
- Badezimmer: 3
Zustand & Erschließung
- Baujahr: 1951
- Bauweise: Massiv
- Dachform: Satteldach
- Keller: voll unterkellert
Sonstiges
Die Angaben zum Objekt beruhen auf Informationen der Verkäufer.
Eine Haftung für deren Richtigkeit und Vollständigkeit übernehmen wir nicht.
Wir bitten um Verständnis, dass wir auf Wunsch der Eigentümer nur Anfragen mit Adresse und Telefonnummer bearbeiten können.- Verfügbar ab: sofort
- zurzeit vermietet: ja
-
- Heizungsart: Zentralheizung
- Befeuerung: Öl
-
- Energieausweis-Art: Verbrauch
- Energieausweis gültig bis: 07.12.2027
- Energieverbrauchskennwert: 115,00 kWh/(m²*a)
- Warmwasser im Energieverbrauch enthalten: ja
- Primärenergieträger: Öl
- Energieeffizienzklasse: D
- Energieausweis-Gebäudeart: Wohngebäude
Endenergieverbrauch dieses Gebäudes115,00 kWh/(m²·a)050100150200250300350≥400 -
- Lage/Gebiet: Mischgebiet
-
- Kaufpreis: 800.000 €
- Käuferprovision: Käuferprovision: 3,57% inkl. 19% Mwst. vom notar.verbrieften Kaufpreis
- Hinweis zur Courtage: Käuferprovision: 3,57% inkl. 19% Mwst. vom notar.verbrieften Kaufpreis, d.h. 28.560 Euro inkl.19% Mwst.
- Mieteinnahmen/Jahr: 21.180 €



















